Agencja Reklamy FUX

lokalizacja
Gliwice, PL

program
biurowo - magazynowy

rok
realizacja
2015

powierzchnia
788m2

zespół projektowy
Łukasz Piankowski, Weronika Juszczyk

zdjęcia realizacji
Krzysztof Zgoła

nagrody
wyróżnienie w konkursie Architektura Roku Województwa Śląskiego 2017
finalista Bryła Roku 2017

Zdjęcia archiwalne dawnej kopalni KWK Gliwice, fot. Narodowe Archiwum Cyfrowe

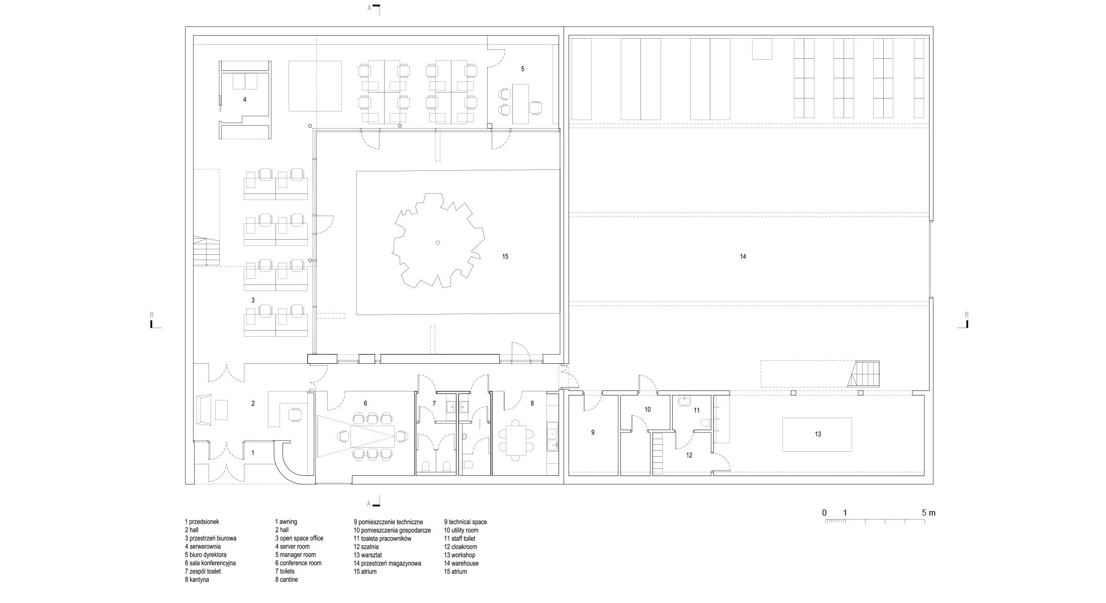
Obiekt położony jest w strefie ekonomicznej Nowe Gliwice utworzonej na terenach byłej kopalni węgla kamiennego KWK Gliwice. Obszar sukcesywnie rekultywowany do nowej funkcji, w którym szkody wyrządzone przez działalność człowieka skutecznie zastępowane są nową wartością użytkową, architekturą. Podstawowym zadaniem było połączenie funkcji biurowej oraz magazynowej w sposób zapewniający komfort pracy przy jednoczesnym, klarownym podziale funkcjonalnym.
Odmienny sposób użytkowania poszczególnych części oraz co za tym idzie inne wymagania przestrzenne zostały połączone w jeden kompleks z wewnętrznym atrium. W ten sposób stworzyliśmy spójny obiekt, w którym granica pomiędzy strefa biurową, a przemysłową została skutecznie zatarta. 

Jak powinna wyglądać siedziba specjalistów od reklamy? Czy reklama może działać bez feerii kolorów i wrzasku liter? Może. I to jeszcze jak. Pośród powszechnego przestrzennego chaosu ten prosty budynek jest wzorem do naśladowania. Dosłownie błyszczy przykładem.”

opinia sądu konkursowego Architektura Roku Województwa Śląskiego




Moodboard

Biuro agencji FUX jest obiektem o zwartej i spójnej bryle, pokryty połyskującą blachą elewacje nadają jej pewnego rodzaju lekkość, stanowiąc także ukłon ku przemysłowej tradycji. Ponadto powstała tu komfortowa przestrzeń do pracy, zaprojektowana w taki sposób, aby jej użytkownicy czuli się w niej dobrze.

Wspólne atrium tworzy unikalna strefę prywatną, która stanowi przedłożenie części biurowej oraz ogrodu.
Takie bezpośrednie połączenie zaciera granice pomiędzy wnętrzem i zewnętrzem poprawiając tym samym jakość otoczenia pracy oraz jego codziennego funkcjonowania jako biura typu open space.
Dzięki wykreowaniu takiej wolnej, intymnej przestrzeni powiększyliśmy możliwość wykorzystania miejsca do kreatywnej, swobodnej działalności szczególnie w kontekście umacniania pozytywnych relacji pomiędzy pracownikami oraz zróżnicowanym zadaniami do wykonania.

Aksonometria

Elewacja obiektu została obłożona płytami warstwowymi z blachy nierdzewnej, która przechwytuje światło, półtony i refleksy - zmienia się razem z porą dnia i nasłonecznieniem. W pochmurne dni elewacja przenika się z szarym, stonowanym niebem, a krawędzie tracą ostrość

Rzuty

Wnętrza

Wnętrza nowej siedziby Agencji Reklamy Fux są kontynuacją założeń płynących z architektury. Biura typu open space otwierają się na atrium, które w miesiącach letnich zamienia się w dodatkową przestrzeń kreatywnych działań. Elastyczne ustawienie stanowisk pracy pozwala na modyfikację układu funkcjonalnego w zależności od ilości i potrzeb pracowników. 

W centralnym miejscu usytuowano strefę grupowej pracy i nieformalnych spotkań. Elementy wykończenia takie jak beton i stal nierdzewna, które są odzwierciedleniem materiałów użytych na elewacji zewnętrznej zestawiono z naturalnym drewnem, ciepłymi odcieniami wykładzin podłogowych i kolorem żółtym, który nawiązuje do identyfikacji wizualnej agencji.

Publikacje

Previous
Previous

Dom w krajobrazie

Next
Next

Apartamenty CLT