Sopockie Apartamenty

lokalizacja
Sopot, PL

program
Mieszkaniowy, wielorodzinny

rok
2020 w oczekiwaniu na realizację

zespół projektowy
Łukasz Piankowski, Weronika Juszczyk

wizualizacje
SZUMgrupa

Kontekst miejsca

Budynek mieszkalny zlokalizowany jest w południowo-zachodniej dzielnicy Sopotu, w niedalekim sąsiedztwie rezerwatu przyrody Zajęcze Wzgórze. Z jednej strony bliskość centrum umożliwia korzystanie z atrakcji życia miejskiego, z drugiej zaś położone w niedalekim sąsiedztwie tereny leśne zapewniają sposobność doświadczania naturalnego piękna przyrody oraz aktywnego tryby życia.

Lokalizacja

Nowoczesna architektura odwołuje się do kontekstu miejsca, w pełni wykorzystując walory przyrodnicze działki, a istniejący drzewostan stanowi ramę dla architektury. Budynek został wyposażony w zewnętrzne balkony pełniące funkcję letnich salonów od strony nasłonecznionej oraz przestrzeni gospodarczych od strony północnej. Projektowane ażurowe balkony stanowią nowoczesną parafrazę tradycyjnej, drewnianej sopockiej werandy. Powiększone przeszklenia i szerokie tarasy umożliwiają kontakt z naturą.

Aksonometria

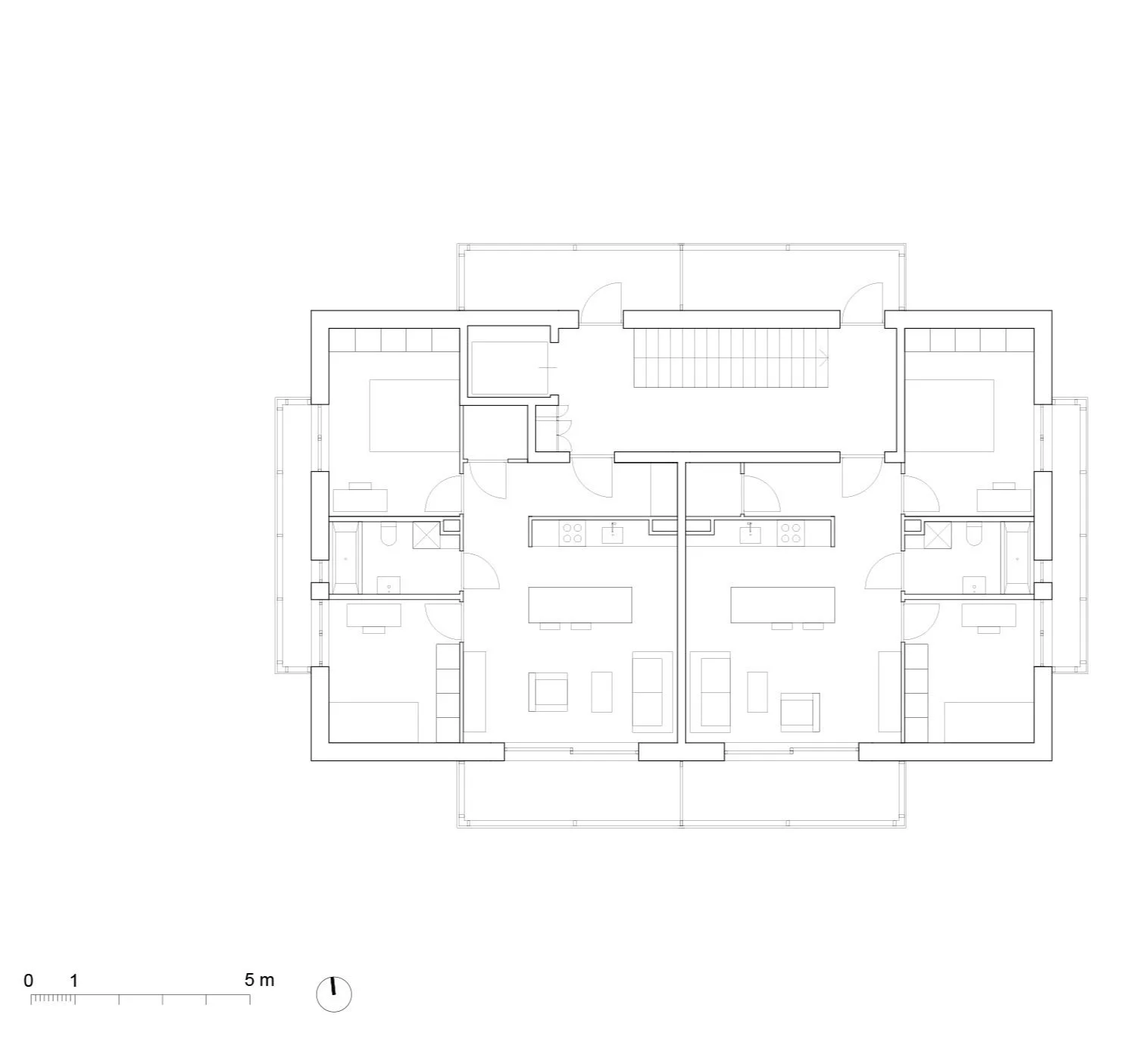
Rzut piętro I

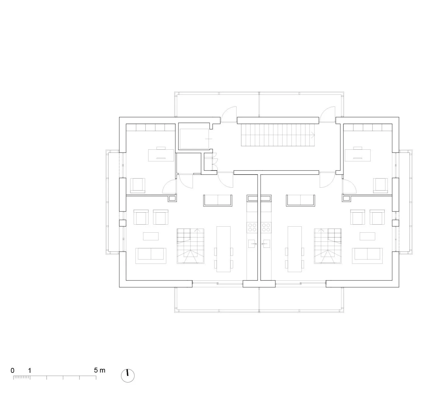
Rzut piętro II

Detale elewacji

Przekrój

Publikacje

Previous
Previous

PSG Gdańsk

Next
Next

Dom wielopokoleniowy