Willa Jurate

lokalizacja
Jurata, PL

program
Apartamenty wakacyjne

rok
2023 I w trakcie realizacji

zespół projektowy
Łukasz Piankowski, Weronika Juszczyk

wizualizacje architektury
SZUMgrupa

wizualizacje wnętrz
Blok Studio

zdjęcia lotnicze
Kacper Kaper

Projekt nawiązuje do bogatej i wielowątkowej historii Juraty. Nadrzędnym celem jest całoroczne korzystanie z walorów miejsca przy jednoczesnej bliskości ośrodka metropolitalnego Trójmiasta. Styk pomiędzy częścią prywatną, a otaczającą budynek przyrodą jest tu niezwykle istotny, to pośrednictwo stanowi główny element budowania architektury obiektu:

„Jurata, to unikalny, niepowtarzalny kontekst przyrodniczy, historyczny, kulturowy. Granica pomiędzy morzem i lasem, bogata historia i ludzie z nią związani jest tu szczególnie wyczuwalna i to stanowi o niepowtarzalności tego miejsca. Dla tej inwestycji poszukiwaliśmy rozwiązań opartych na prostocie, ale nawiązujących do najlepszych tradycji budowania - chcemy aby ten budynek opowiadał historie łącząc ludzi i miejsca.”

Lokalizacja

Poszukując spokojnej atmosfery lasu, czerpiąc z bliskości morza stworzono budynek osadzony w centrum Juraty, w charaktery- stycznym kontekście przyrodniczym. Bogactwo lokalnej przyrody tworzy atmosferę relaksu i odpoczynku, unikalne położenie pomiędzy otwartym morzem i Zatoką Pucką pozwala w pełni korzystać z walorów tego miejsca.

Trzon stanowi prostopadłościenna bryła dopełniająca styk ulic Świętopełka i Ratibora.
Duże przeszklenia w połączeniu z rozległymi tarasami pozwalają na bliski kontakt z naturą. Przestrzenne balkony zaprojektowane z myślą o zmiennych warunkach pogodowych stanowią dopełnienie wnętrza, umożliwiając korzystanie z uroków natury przez cały rok. 

Detal balkonu

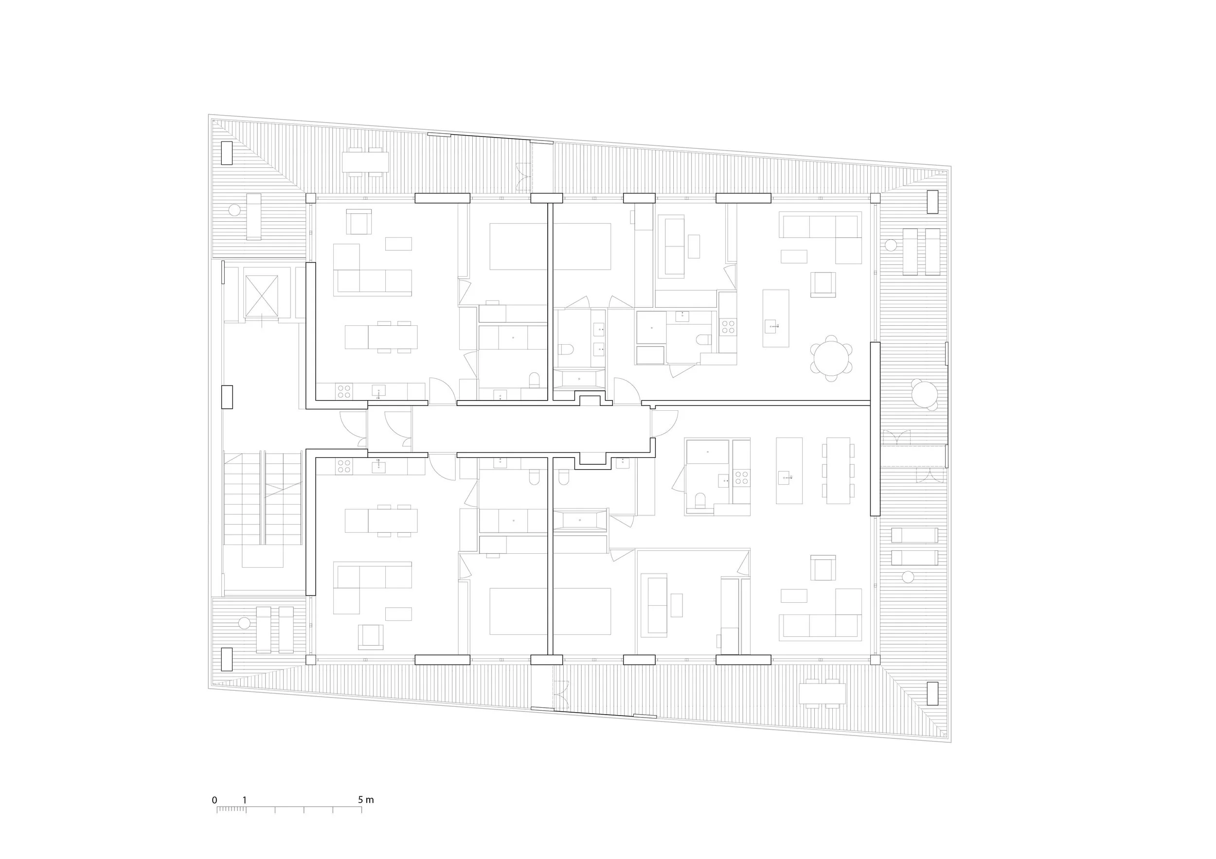
Rzut kondygnacji I

Wnętrza

Dla tej inwestycji zaprojektowaliśmy trzy różne stylizacje do wyboru przez Klienta oparte wizualnie na różnych obliczach Morza Bałtyckiego.

Proces

Next
Next

Nadbudowa Gdynia